В Казани появится новый микрорайон с 22-этажками

В Приволжском районе Казани появится еще один жилой массив с многоэтажками, образовательным учреждением, коммерческими помещениями и другими объектами инфраструктуры.

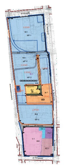
В Приволжском районе Казани появится еще один жилой массив с многоэтажками, образовательным учреждением, коммерческими помещениями и другими объектами инфраструктуры. Соответствующее постановление появилось в сборнике документов.

Общая площадь нового микрорайона составит 40,66 гектара. В  утвержденном проекте сказано, что жилмассив будет ограничен Технической, Кулагина и  Тихорецкой, а  также находиться недалеко от  железнодорожных путей.

Запланировано, что жилые дома можно будет строить до  22  этажей, но  вместимость должна составить около 12  тысяч человек.

Внутри микрорайона будут находиться помещения для существующего пансионата для пожилых, тренажерные залы, детский сад на  340  человек, котельная, многофункциональный комплекс, библиотеки и  другие объекты инфраструктуры.

Ранее власти уже утвердили жилой массив рядом с  указанным проектом. Тогда стало известно, что он  будет находиться между улицами Владимира Кулагина, Авангардная, Техническая и  Тульская, а  его площадь превысит 68,8 гектара.

Недавно власти Татарстана наложили вето на  выданные разрешения на  строительство жилья в  поселках вокруг Казани. Сами жители обрадовались данному решению руководства республики, заявив, что устали от  возведения человейников.

Фото: inkazan.ru

Последние новости

Как выбрать идеальный дизайн визитки, чтобы тебя запомнили с первого взгляда

Простое руководство по созданию маленького шедевра, который работает за тебя

ТОП-5 самых частых поломок серводвигателей

Какие неисправности встречаются чаще всего и почему именно они становятся головной болью владельцев оборудования

Как продлить жизнь блоку питания: 5 простых советов

Блок питания живёт дольше, если соблюдать элементарные правила. Проверенные методы от мастеров и инженеров — без магии и сложностей.

Коррекция фиброза и возрастных изменений: когда показан эндотканевой лифтинг

Как современная технология помогает вернуть коже упругость, убрать отёки и улучшить рельеф без хирургии

На этом сайте вы найдете актуальные вакансии в Александрове с предложениями работы от ведущих работодателей города

Комментарии (0)

Добавить комментарий

Ваш email не публикуется. Обязательные поля отмечены *